-
-
-
Tổng tiền thanh toán:
-
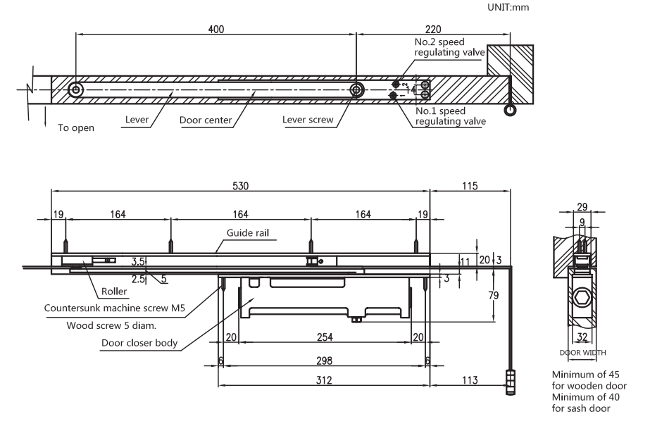
- Đạt tiêu chuẩn quốc tế EN 1154
- Có chức năng giữ cửa ở 90⁰
- Góc mở tối đa: 120⁰
- Lắp âm trong cánh cửa hoặc khung cửa
- Lực đóng mở: size 3
- Điều chỉnh được tốc độ đóng, chốt
- Thích hợp cho cửa mở trái và mở phải
- Cho cửa rộng: 850- 950mm, trọng lượng tối đa 65Kg
- Độ dầy cửa tối thiểu: 45mm
- Thân được đúc bằng hợp kim nhôm nguyên khối; Tay đòn, bu lông, ốc vít làm bằng inox
- Màu hoàn thiện: Bạc
- Trong bao gói sản phẩm có tờ Hướng dẫn lắp đặt và điều chỉnh tốc độ. Nếu KH cần, sẽ có thợ kỹ thuật hỗ trợ lắp đặt từ xa


